St Hilda’s College
Oxford









Invited Competition Entry 2015–2016
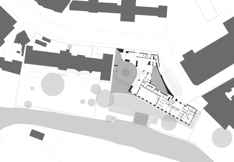
The site of St Hilda’s College has been defined physically by the linear flow of water over the surface of the land. The Cherwell is the predominant force that has influenced the site’s formation over time, creating a linear order to the College. Our project studies this condition of space defined by river and the built edge constrained by the alluvial condition. The space between these two linear structures is a fertile ground of meadows and growth; it is this space that is occupied by St Hilda’s. Our proposal seeks to redefine and reinforce this underlying order in the arrangement of form, and in the linear connection of external spaces relating to the river. In contrast to the typical Oxford College characterised by Quad and Court, St Hilda’s could be defined by a protected space relating to the horizon, and open views to the landscape and sky.