South Sound II
Grand Cayman




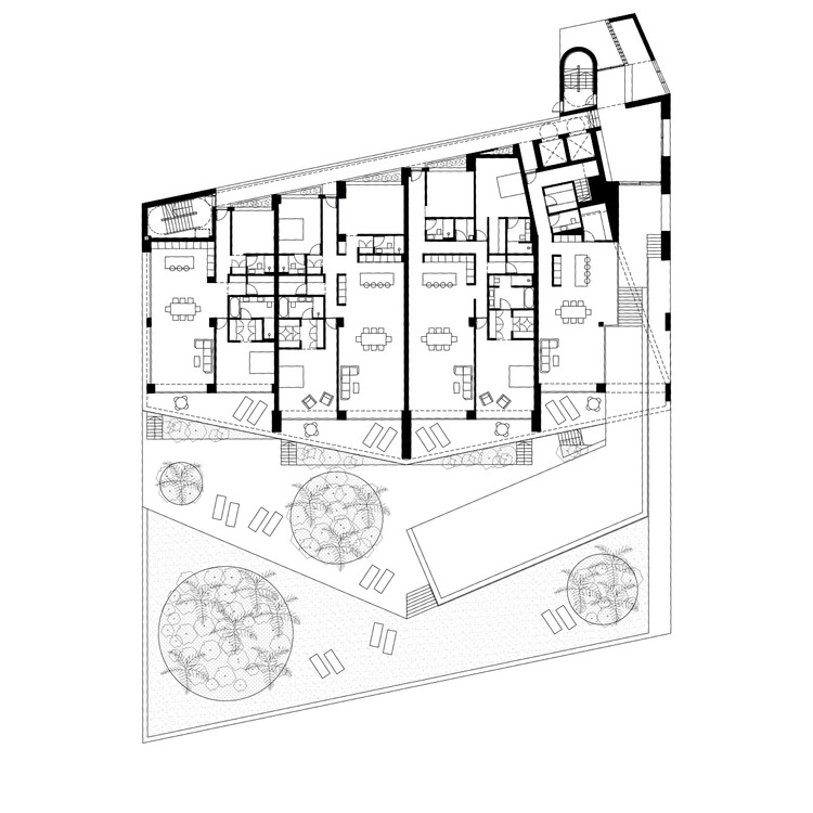
This project, a few hundred metres to the east along the coast from South Sound I, proposes 16 large apartments on a constrained site. The project makes a strong rhomboid figure between a much larger development to the west and a private dwelling to the east.
The geometrically defined intervention in the characteristic scrub–based landscape of the coast creates a strong plan figure in the landscape which on the seaward side appears as a raised ground platform held above the terrain that permits the landscape to grow through in defined places in the sea–facing terraces.
This strategy provides a strong definition to the project whilst addressing the zonally defined planning constraints of offsets and setbacks, relating to the boundaries and registered mean high water mark. The plan form emerged from dimensions and orientation of the site and its relationship to the undisturbed southerly view across the reef to the Caribbean.